BY MICHAEL OLOHAN
OF NORTHERN VALLEY PRESS
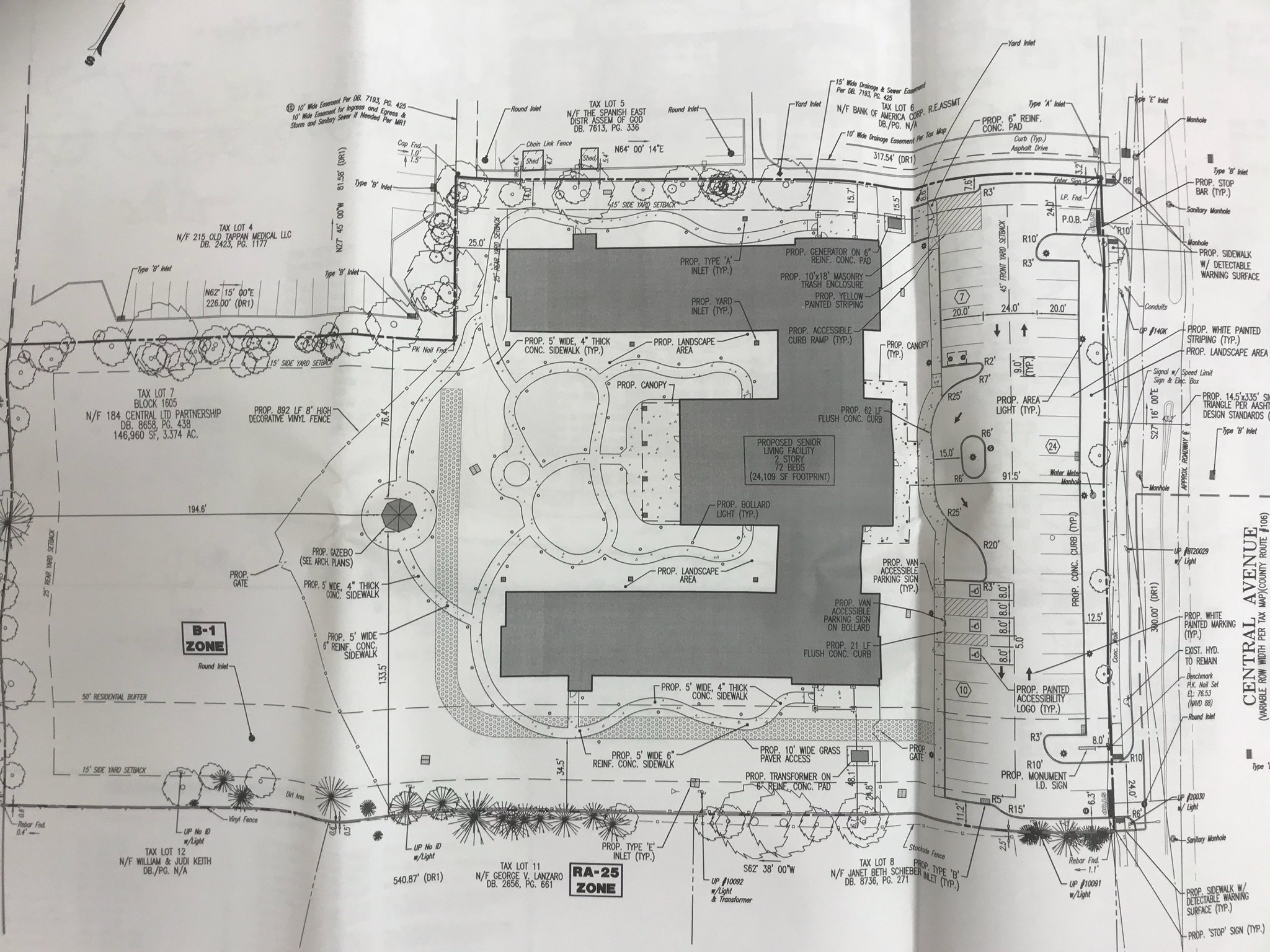
OLD TAPPAN, N.J.—Questions about possible traffic impacts on a nearby school and testimony on proposed facility operations will likely be heard at the second hearing March 13 on a proposed two-story assisted living facility planned for a 3.4-acre site at 184 Central Ave.
At the proposal’s first Planning Board hearing Feb. 19, an engineer for applicant Artis Senior Living LLC, of McLean, Virginia, described the planned assisted living facility as approximately 39 feet high, comprising a 42,618-square-foot building including 72 single-bed units and an 8-foot-tall fence surrounding the facility.
At the second March 13 hearing, the applicant is expected to testify about operations at the proposed facility, addressing questions raised about parking space sizes, whether facility shifts may impact traffic flow at nearby Northern Valley Regional High School at Old Tappan and possibly address the four requested variances.
The applicant requests a use variance as senior living facilities are not a permitted use in the site’s current B-1, or Business District zone.
Moreover, a height variance for building height exceeding the 25 feet allowed, a couple buffer zone variances and additional waivers of local zoning codes as needed may be requested, states a Notice of Public Hearing published Dec. 2, 2018.
According to its notice, the applicant requests “application checklist waivers” from the Planning Board for location, species and height of existing plant materials to remain on site, excluding ground cover but including all trees; and existing and proposed stormwater drainage system details.

Operations to be detailed
Councilwoman Anna Haverilla, who sits on the board, said the December hearing was cancelled and the February hearing was the applicant’s first appearance.
She said she anticipated testimony at a second hearing to get into specifics about facility operations and address questions about traffic and why a second such facility is needed locally.
“It’s completely open at this point, with many questions to be asked and answers still yet to come,” Haverilla said.
Asked about whether such a facility is needed, Haverilla said she has a lot of confidence in board members.
“I have a lot of faith in our Planning Board to evaluate this and make the right decision,” Haverilla added.
She said as more information comes out, and experts testify, and questions are asked by board professionals and members, the public will learn more about the proposal and whether “it’s a fit for the community.”
The proposed assisted living facility will include amenities such as a health center, beauty/barber shop, and a large public lawn area and gazebo.
Under the borough’s affordable housing settlement, the former Pearson Education property was rezoned for possible use as an assisted living facility or townhome development at 12 units per acre.
When sold, a new owner will have the option to keep the property as commercial office space or pursue the other options under the new affordable zoning.

Parking space size
The applicant notes 41 parking spaces will be provided on site, five more than current code requires. Current code requires 0.5 spaces per bed, or only 36 spaces. The applicant notes parking spaces will be 9 feet wide by 20 feet long, which does not meet current code of 10 feet wide by 20 feet long.
However, the applicant states proposed parking stalls “will adequately accommodate the site” because industry standards only call for between 8 feet, 3 inches to 8 feet, 6 inches wide and 18 feet in length.
A traffic impact study by Dynamic Traffic, Chester, included with project materials available for public view at Borough Hall notes the assisted living proposal will not cause any local traffic issues, and projects reduced peak traffic volumes.
The site presently houses an office building and warehouse.
The study estimates 56 fewer trips during morning peak hours and 36 fewer trips during evening peak hours.
Local and county-owned streets “will not experience any significant degradation in operating conditions with the construction of the project. The site driveways are located to provide a safe and efficient access to the adjacent roadway system. The site plan as proposed provides for good circulation throughout the site and provides adequate parking to accommodate the project’s needs,” states the traffic impact report, dated Oct. 18, 2018.
Memory care focus
Artis Senior Living LLC, developer of 15 assisted living communities with another 30 in development, is a developer-owner-operator of assisted living residences nationwide, and most residences are focused on individuals with Alzheimer’s disease and related memory disorders, said the applicant’s website.
Currently Artis Senior Living has two assisted living facilities in New Jersey: in Evesham and Princeton. It was unclear from documents on file at Borough Hall how many of the proposed 72 beds might serve memory care individuals, or patients suffering from dementia and Alzheimer’s.
Efforts to reach applicant attorney Gail Price, of Price, Meese, Shulman and D’Arminio, and a representative of Artis Senior Living were not returned by press time.
Photos by Michael Olohan
