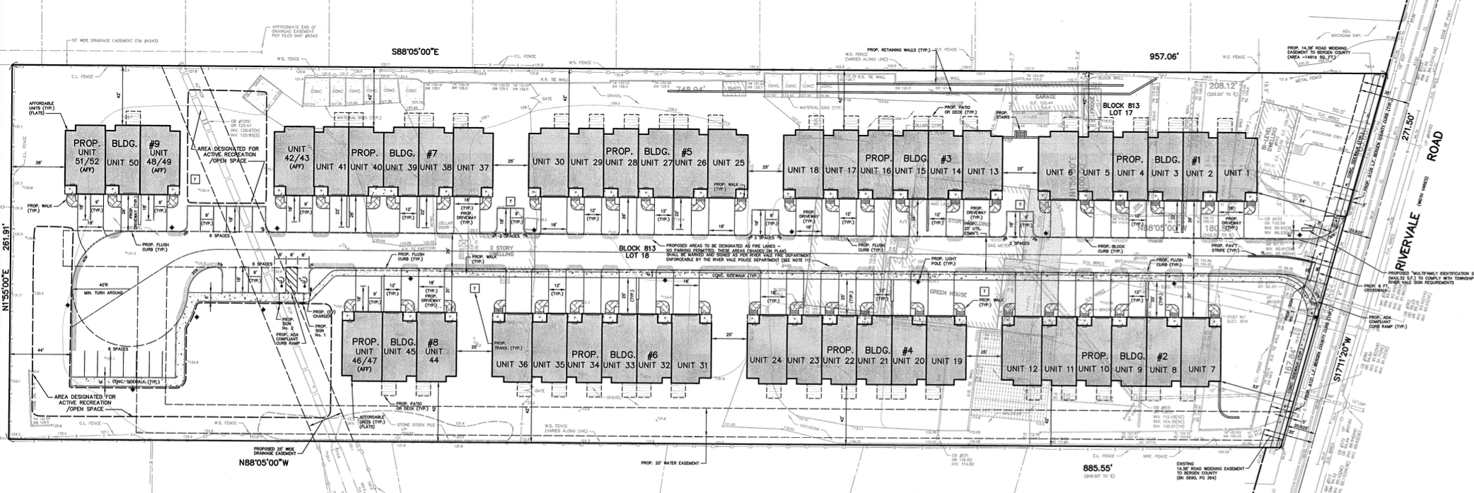
RIVER VALE—The township’s Joint Planning Board voted unanimously Sept. 25 to deny Incandescent Development’s proposed 52-unit, nine-building townhome development, including eight affordable units, planned for 5.4 acres at 691 and 693 Rivervale Road.
After the vote at a packed Senior Community Center, nearly 100 residents erupted in applause. Several times throughout the hearing, attendees were warned by chair Scott Lippert or attorney Marc Leibman to refrain from outbursts or catcalls during the applicant’s testimony. Both officials said these reactions would be recorded in the transcript.
Following nearly 3 1/2 hours of professional testimony, board and public questions, and more than two dozen public comments, Lippert made a motion to deny the application “in its entirety,” which passed 7-0.
Voting against the application were Delix Alex, Anthony LaSpada, Demetria Bogosian, Peter Wayne, Matthew Ross, Susan Vaccaro, and Lippert. No reasons were offered during the vote, which took place around 11:00 p.m.
After the denial, applicant attorney Douglas Bern told Pascack Press that his client would consider appealing, noting they have 45 days after the board memorializes its decision by resolution.
Bern said they had made a “moderate” proposal and noted the board’s commitment to a “diversity of housing types,” including affordable housing. Applicant planner Brigette Bogart and Bern referenced the upcoming fourth round of affordable housing obligations in late October, highlighting the proposal’s eight affordable townhomes.
The controversial application faced opposition at all three hearings, mainly due to concerns over high density, traffic, and impacts on schools.
At the Sept. 25 session, many residents also argued that the development was out-of-character with the neighborhood and could raise local taxes while lowering property values.
Many comments focused on the applicant’s decision not to analyze whether single-family homes or high-density townhomes were a better fit for the Forcellati nursery property.
Bern acknowledged they did not study whether single-family homes would be a better option. This appeared to be a sticking point for some board members, including Lippert.
The townhome development was in the “A” zone for single-family homes. A use variance was required from the board to construct townhomes.
During the hearing, Bogart provided extensive background on how the application met the criteria for a “d” or use variance.
Residents questioned prior testimony from traffic and engineering experts, alleging that a 52-unit development would create more traffic and stormwater than a garden center. Leibman noted that nearly three dozen documents on the proposal were posted for public review.
Some also questioned Bogart’s estimates of four new students from the development, based on her study. At one point, Bogart said the nursery lot should have been included in the third round of affordable housing but was left out. Bern reiterated that the site was “ideally suited” for townhomes.
Many argued planners should “maintain a single-family feel” and not approve a use variance for townhomes. Others said the development threatened the “character” of River Vale.
