TOWNSHIP OF WASHINGTON—The Zoning Board of Adjustment authorized an independent traffic study Jan. 24 of the proposed 17,000 square-foot-plus retail complex called “4 Seasons Marketplace” proposed at the Pascack-Washington intersection, and results are expected at its next Feb. 28 hearing.
The board authorized its consultant, Boswell Engineering, to conduct the traffic study following heavy questioning by residents and board members about the consultant’s study findings of little traffic impact from the proposed strip mall at one of the township’s busiest intersections.
The new traffic study’s cost and when it might be posted for public review before the Feb. 28 hearing was not available at press time.
Over two-plus hours Jan. 24, the applicant’s traffic consultant, Gary Dean, Dean & Dolan, Somerville, answered board and resident questions about his 53-page traffic study that found an “inconsequential” increase in nearby intersection traffic from the proposed strip mall.
The study, dated Sept. 28, 2022, notes on p. 6 that “the proposed use generates a minimal number of new trips during the peak hour. The impact of 43 additional vehicles (at most) per hour is not considered a significant increase in traffic as defined by ITE (Institute of Traffic Engineers) and NJDOT (state Department of Transportation). This volume is considered too low to have any type of measurable effect on operation conditions and presents on average, less than one new vehicle every minute – at peak times.”
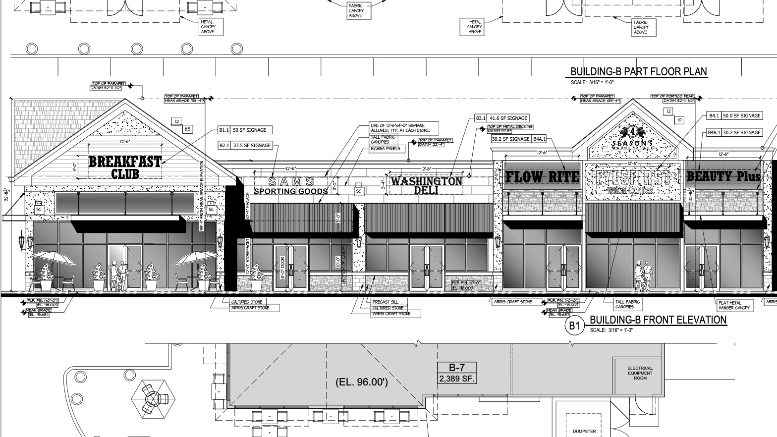
The Dolan & Dean traffic study can be viewed on the Zoning Board website under the “Four Seasons Town Square” documents link.
At the proposal’s Dec. 20 third hearing, Dean detailed his study, noting a new strip mall, with up to 11 stores, would generate only 43 additional vehicles “over the course of a peak hour at most” and called the extra traffic “inconsequential” to overall traffic volume at the busy Pascack-Washington intersection.
He said the new traffic-flow improvements being made by Bergen County Engineering, including additional through lanes and turning lanes, would add extra traffic capacity to the intersection and vehicles generated by a proposed strip mall, including cars and delivery trucks, would not affect that.
At the proposal’s Dec. 20 third hearing, at least a half-dozen residents questioned Dean’s conclusions, and resident Leonard Sabino (also Planning Board Vice Chair) previously had called for an independent traffic study on the proposed retail strip mall. Dean said then he had “no problem” with an independent traffic study to review his findings.
On Jan. 24, more than a dozen residents questioned Dean and many raised concerns that the study’s manual traffic counts did not take into account township warnings and message boards that advised motorists to avoid the intersection due to expected construction delays.
Newly elected Zoning Board chair Michael DeSena also raised the issue. He said residents were told to “avoid (the) intersection at all costs” and called that “a big factor” in people’s minds about why future traffic flows might increase more post-construction.
Dean estimated that “maybe 20 percent paid attention to the signs” and noted that there are “always variations in traffic flow” day to day. “We are trying to incorporate engineering and human behavior … we do our best,” Dean said.
Dean said that the ITE data used to project traffic flows included 25 studies of strip malls under 40,000 square feet of retail space. He could not say whether any studies were from Bergen County, although some studies were from New Jersey, with locations unspecified. Other strip malls studied were in Florida, Maryland, Delaware, Wisconsin, Vermont, South Dakota, Oregon, Washington, D.C., and Canada.
James Case, Braeburn Drive, Northgate Condominiums, questioned Dean on how many cars will be returning to the intersection when improvements are complete. He also asked if different types of retail stores generate different traffic volumes, such as a fast-food store or coffee shop.
Dean said that the ITE data includes data generated from other similar strip malls but does not include traffic data generated by specific types of retail stores. Applicant Attorney Bruce Whitaker previously said no tenants are signed up for the mall and won’t be unless the application is approved.
Case questioned why Dean said the site was “particularly well-suited” for a strip mall and Dean cited the existing two busy county roads and ongoing intersection improvements. Case criticized Dean for not knowing an estimate of how many more cars would traverse Pascack-Washington on a monthly and yearly basis from the proposed strip mall.
Resident Susanne Sloan, Braeburn Drive, attempted to offer information on accidents occurring at Pascack-Washington intersection and was told she must submit the data before a hearing to the Zoning Board secretary and that the data must be authenticated.
Generally, following expert or professional testimony before the Zoning Board, the public may only ask questions of a professional related to their testimony, without offering personal opinions or unsubstantiated data or reports unknown to the applicant. However, the public is permitted to offer personal opinions, commentary, and specific criticisms of the application, and applicant experts, at the final hearing’s public comment period.
Diane Ferrara, Amherst Drive, asked that the application be “paused” until the Pascack-Washington intersection improvements are done and regular traffic returns. However, board attorney Gary Giannantonio told her that board members were under “certain time restraints” to act on the proposal and he would defer to the board traffic expert’s report at the next meeting.
Summing up, Dean told Whitaker that the current “F” level of service at the nearby intersection will improve to a “C” level of service, after county upgrades are completed. The Dolan & Dean study notes “F” service level as an 80-second or greater delay at a traffic signal, while a “C” level of service is a signal delay greater than 20 seconds but less than 35 seconds.
Dean previously said that the proposed site plan, including entryways and driveways, was approved by the county engineering and planning department. Both Pascack Road and Washington Avenue are Bergen County roadways.
The next meeting on Feb. 28, 7:30 p.m., will likely feature testimony and questions on the board’s independent traffic study, plus testimony by Applicant Planner Paul Grygiel, and board and public questions if time allows. Check the Zoning Board’s Feb. 28 online agenda for details.
