BY MICHAEL OLOHAN
OF NORTHERN VALLEY PRESS
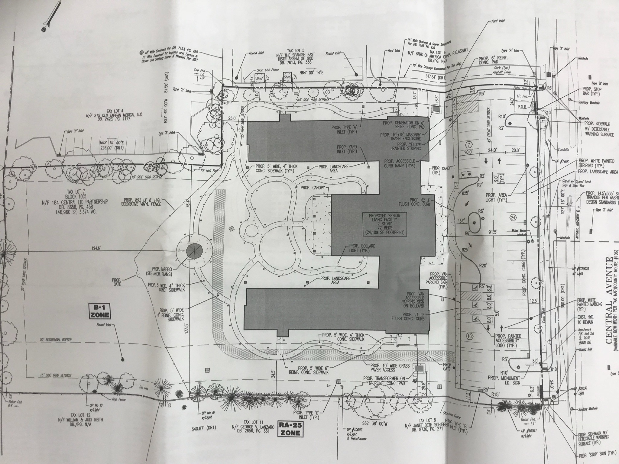
OLD TAPPAN, N.J.—Questions about parking, facility operations and emergency response dominated the second Planning Board hearing March 13 for a two-story, 42,618-square-foot assisted living facility proposed for a 3.4-acre site at 184 Central Ave.
The proposed 72-bed assisted living facility would be the second in Old Tappan and a company official told Planning Board members the facility will be 100 percent focused on memory care, aiding individuals who experience Alzheimer’s or dementia-related diseases.
The proposal’s next hearing is scheduled for April 10, 7:30 p.m.
Artis Senior Living LLC, of McLean, Virginia, which owns similar memory care facilities in Princeton and Evesham, was founded seven years ago and operates 15 facilities in seven states.
In addition, two facilities in Brick and Eatontown are under construction and facilities are proposed in Mountainside, Florham Park and Metuchen.
Applicant attorney Gail Price said based on board comments at the first hearing Feb. 13, the applicant increased on-site parking from 38 to 58 spaces, including three handicap-accessible spaces.
‘Way in excess’
Price said the increased parking was “way in excess of what is necessary but does respond to the board’s concern” and the additional 20 spaces may be used for overflow parking and emergency access to the building’s side.
Price said a set of revised site plan drawings were provided March 13, detailing an enlarged entrance area to allowing emergency vehicle access and turning. Moreover, other emergency-related items were addressed following a meeting with local public safety officials.
Max Ferentinos, vice president, Artis Senior Living LLC, said he had 18 years of experience in the assisted living industry, and noted all aspects of the proposed memory care facility, from layout of buildings, wall colors, carpeting and outdoor spaces, are adapted to assist memory care residents.
He said each of two floors are divided into residential wings, or “neighborhoods.”
Both floors feature a living room, dining room and kitchen, and meals are served “family style” on each floor.
A first-floor lobby allows for visitors to enter the facility, he said. In addition, the second floor features a cafe, barber shop, beauty salon, health/fitness space, and community room.
He said the two elevators which service the second floor can accommodate an emergency medical services gurney and two medical personnel, as code requires.
Outside the facility, the building is enclosed on three sides by a 7-foot fence with decorative lattice on top, and outside activities include gardening and walking, he said.
Shifts staggered
He said following board comments, a newly revised site plan will show deliveries now enter the building via a dedicated loading door on the side.
Again based on member comments in February, Ferentinos said corporate operations staff agreed to stagger shift operating times, moving the morning shift from a start time of 7 a.m. to 6:30 a.m. to minimize traffic concerns.
Afternoon release times were moved up a half-hour to 2:30 p.m. rather than 3 p.m. as previously scheduled.
A traffic expert is expected to testify at the next hearing April 10, Price said.

Evacuation concerns
Police Chief Thomas Shine questioned Ferentinos about specific plans for evacuation of the 72-bed facility and what plans existed for transporting residents off-site.
Attorney Price said an evacuation plan must be developed to get a certificate of need from the state Department of Health for the facility and that plan will be provided to Shine and first-responders.
When Shine questioned what resources were available for facility residents to shelter in place during an emergency such as a severe storm, Ferentinos said he would provide details later.
When Ferentinos mentioned that none of Artis’ memory care facilities have surveillance cameras to monitor residents, Shine noted one incident that occurred with another facility in town that led to tragedy.
Ferentinos said staff constantly monitors residents but Shine pressed him on why no video systems are used by Artis.
“I don’t know,” conceded Ferentinos. “Nothing’s perfect but we strive to make sure we go above and beyond.”
Earlier during testimony, Ferentinos had mentioned the facility’s “shelter in place” plan during emergencies and said state regulations require such a plan as well as moving residents to another safe location should conditions require it.
He also testified the facility does not use personal monitoring devices on residents to track their movement.
30 visitors per day
Ferentinos said at similar facilities, an average of 30 visitors per day was normal, many arriving for periods between 10 a.m. and 2 p.m. He said it generally takes two years from completion for a facility to reach full occupancy. He predicted a construction timeline of 15-16 months.
He said average resident age was 84, with 70 percent women and 30 percent men. He said most residents come from families within 7 miles of a facility.
He said facilities do not see a “spike” in visits during holidays such as Christmas, or Mothers or Fathers Day, but generally most families take residents home for the day or out to dinner and return later.
He said the “average resident” stays 30 months, after which some transfer to a nursing home, transfer to another facility or pass away. Ferentinos said over age 65, one in nine Americans has Alzheimer’s; over 85, one in three Americans has dementia, he said.
Ferentinos said 10 percent of beds are eligible for Medicaid individuals, which will count toward the borough’s affordable housing obligations.
“Placing a loved one in a memory care facility is a long protracted, guilt-ridden decision because you’re letting go of your loved one,” Ferentinos said.
